首页/博客/所有/Revit内联家族-设计到制造
通过卡罗尔·邓恩
2017年2月27日|制造,所有
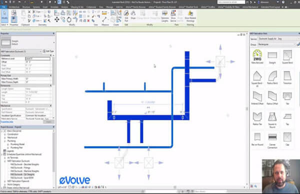
通过利用制造设计线节点概念并将其应用于Revit中的家庭,简化内联Revit设备到制造内容的转换。
制造,所有
在将.maj导出到Fabrication campipe之前,使用带有条件格式的Revit Schedules检查模型。
在CADmep中,我们使用命令SL1来隔离服务。Revit没有一个很好的隔离命令,所以我写了一个使用发电机,下面是一个视频…